Edificio
en venta
en Calle
Pintor Juan Francés
Xàtiva
230.100€
Ref.SBRE-0126250-V
NO COBRAMOS COMISIÓN DE INTERMEDIACIÓN AL COMPRADOR
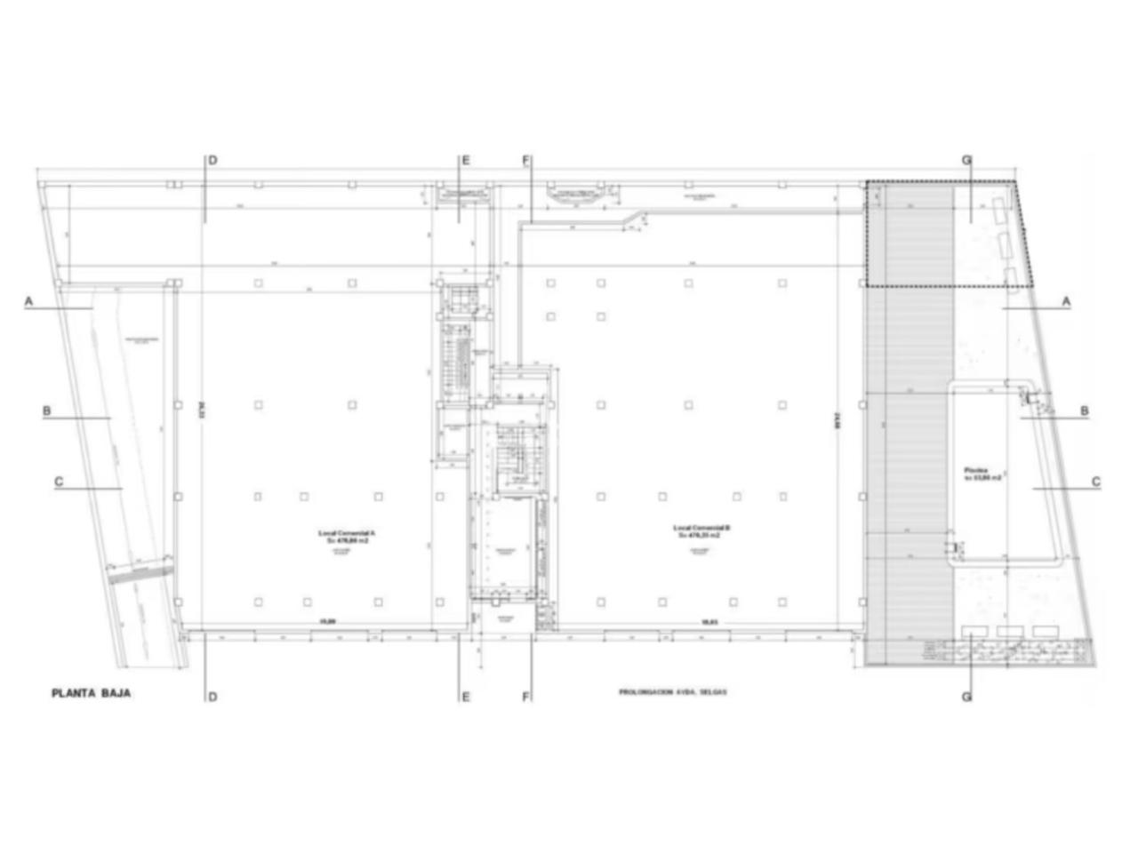
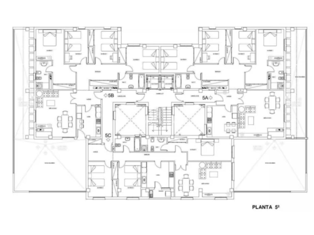
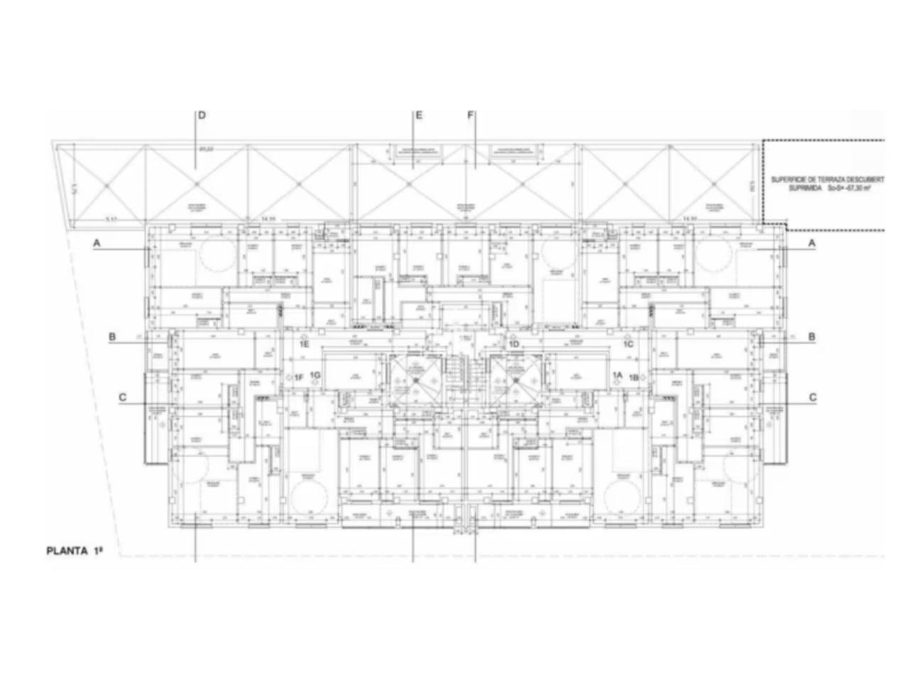
Suelo urbano sobre el que se pretendía construir un edificio de viviendas cuyas obras se paralizaron en el forjado situado a cota cero.
-Con Ref. catas...
NO COBRAMOS COMISIÓN DE INTERMEDIACIÓN AL COMPRADOR
Suelo urbano sobre el que se pretendía construir un edificio de viviendas cuyas obras se paralizaron en el forjado situado a cota cero.
-Con Ref. catastral: 3784303YJ1138S0001QY.
-Edificabilidad sobre rasante 3.435 m2 y 1.159 m2 bajo rasante.
-Hipótesis: El edificio proyectado cuenta con 7 plantas sobre rasante (39 viviendas + 1 local) y 2 plantas bajo rasante (48 plazas de garaje). Previsto siete viviendas por planta entre la 1ª y la 5ª; Cuatro viviendas en la planta 6ª y el local en la planta baja.
Xátiva es una ciudad bien desarrollada que ofrece una amplia gama de servicios y comodidades. Cuenta con una buena infraestructura de transporte público, como autobuses y trenes, que facilitan la movilidad dentro y fuera de la ciudad. También cuenta con una gran variedad de tiendas, restaurantes, centros educativos, centros de atención médica y otros servicios necesarios para una vida cómoda.
La ciudad se encuentra estratégicamente ubicada entre Valencia y Alicante, lo que facilita su acceso mediante una red de carreteras bien desarrollada y servicios de transporte público eficientes, como trenes y autobuses que conectan con otras ciudades de la región y más allá.
Xátiva tiene excelentes conexiones terrestres gracias a la A-7 y la N-340, que la enlazan con Valencia y Alicante. Además, cuenta con una estación de tren de la línea C-2 de Cercanías y servicios de autobuses.
Leer más
-
Superficie útil
3 m2
-
Cert. energética